لافتة تحديد السرعة بالرادار تعمل بالطاقة الشمسية
اقرأ المزيد
مقدمة عن المنتج:
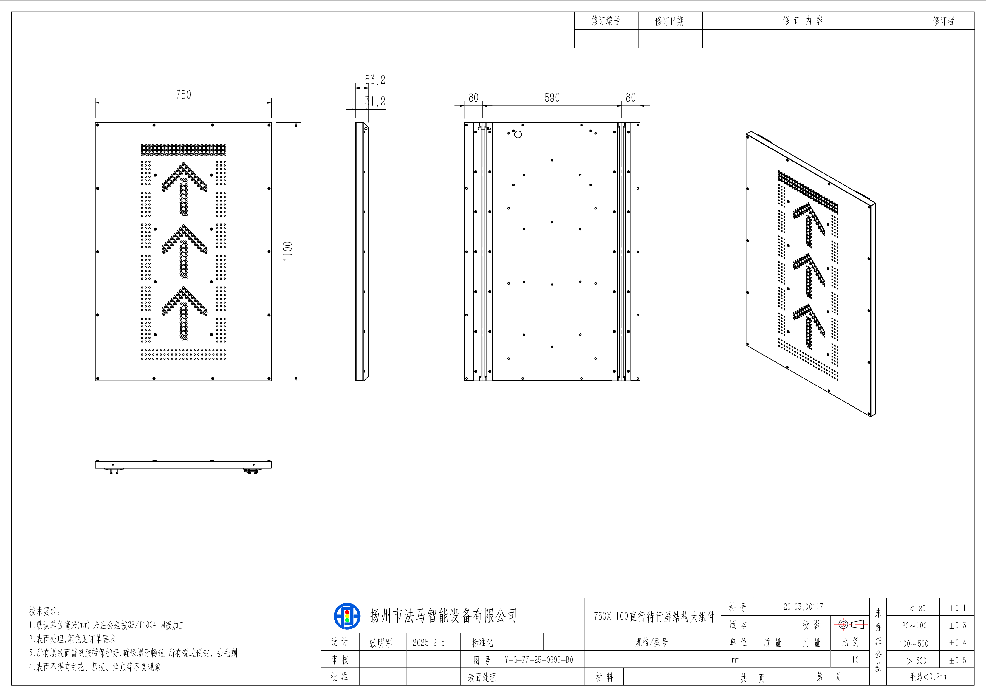
تستطيع لافتة "انعطف يسارًا" أو "استمر مباشرةً" الحصول على معلومات آنية حول حالة الإشارة متعددة المراحل عند التقاطع. وهي تُوجّه المركبات بذكاء للانتظار قبل الانعطاف أو الاستمرار عبر مخطط مروري وأسهم متحركة. يستخدم الجهاز ألوان الإشارة القياسية: الأحمر والأصفر والأخضر، بالإضافة إلى تقنيات الإضاءة العاكسة والنشطة، لضمان رؤية عالية وتحسين كفاءة وتنظيم حركة المرور عند التقاطع. وهو مناسب للتقاطعات الحضرية التي تحمل علامات "انعطف يسارًا" أو "استمر مباشرةً".
| اسم | إشارة الطريق "انعطف يساراً" | لافتة "استمر مباشرة" |
| مقاس | 750 × 1100 مم | 750 × 1100 مم |
| مادة | صفيحة ألومنيوم بسماكة 2 مم | صفيحة ألومنيوم بسماكة 2 مم |
| طريقة تزويد الطاقة | تيار متردد 176-264 فولت / 47-63 هرتز | تيار متردد 176-264 فولت / 47-63 هرتز |
| القدرة المقدرة | ≤ 40 واط | ≤ 40 واط |
| مادة عاكسة | صفائح عاكسة من نوع 3M IV | صفائح عاكسة من نوع 3M IV |
| تباعد الوحدات المضيئة | الحد الأدنى للمسافة > 5 مم؛ الحد الأقصى للمسافة < 35 مم | الحد الأدنى للمسافة > 5 مم؛ الحد الأقصى للمسافة < 35 مم |
| طريقة العمل | يومض السهم الأخضر، بينما يظل السهمان الأحمر والأصفر مضاءين باستمرار. | يومض السهم الأخضر، بينما يظل السهمان الأحمر والأصفر مضاءين باستمرار. |
| وظيفة التحكم في الإضاءة | التعتيم التلقائي | التعتيم التلقائي |
| الإضاءة | وضع النهار ≥ 8000 شمعة/م²؛ (تعتيم تلقائي) وضع الليل ≤ 3000 شمعة/م² | وضع النهار ≥ 8000 شمعة/م²؛ (تعتيم تلقائي) وضع الليل ≤ 3000 شمعة/م² |
| تجانس الإضاءة | ≥90% | ≥90% |
| زاوية الشعاع | 30 درجة | 30 درجة |
| زاوية الرؤية | زاوية الرؤية الأفقية ≥ 120 درجة، زاوية الرؤية الرأسية ≥ 60 درجة | زاوية الرؤية الأفقية ≥ 120 درجة، زاوية الرؤية الرأسية ≥ 60 درجة |
| المدى البصري | ≥ 800 متر (ليلاً)؛ ≥ 250 متر (نهاراً) | ≥ 800 متر (ليلاً)؛ ≥ 250 متر (نهاراً) |
| القوة الكهربائية | 1500 فولت تيار متردد / دقيقة واحدة | 1500 فولت تيار متردد / دقيقة واحدة |
| درجة حرارة مكان العمل | -25 درجة مئوية - 70 درجة مئوية | -25 درجة مئوية - 70 درجة مئوية |
| الرطوبة النسبية | 0~95% رطوبة نسبية | 0~95% رطوبة نسبية |
| مستوى الحماية | يتميز الجزء الخاص بمصابيح LED بتصنيف IP55، ويعتمد على عمليات التغليف. | يتميز الجزء الخاص بمصابيح LED بتصنيف IP55، ويعتمد على عمليات التغليف. |
| مقاومة الرياح | ≥1.5 كيلو نيوتن/م² | ≥1.5 كيلو نيوتن/م² |
| وضع التحكم | يتم التحكم بها بواسطة آلة الإشارة | يتم التحكم بها بواسطة آلة الإشارة |

